Toonmodel te koop
Ons toonmodel “De Slaper” komt beschikbaar voor verkoop. Deze volledig afgewerkte container is ideaal als compacte slaapruimte, gastenverblijf of tiny house. Dit project is compact, stijlvol en meteen leverbaar.
40ft zeecontainers ingekort naar 10m20
Wooncontainer "De Slaper"
Ervaar de perfecte mix van design, comfort en functionaliteit.
“De slaper” is een uniek toonmodel dat het beste van Liv-art bundelt: een stijlvolle containerombouw waarin elk detail klopt. Gemaakt met duurzame materialen en een warme sfeer die uitnodigt tot ontspanning.
Of je het nu ziet als een extra logeerruimte, tiny guesthouse, of een compact vakantieverblijf – deze high cube zeecontainer is klaar om jouw buitenruimte tot leven te brengen.
Verkoop van het toonmodel = een unieke kans.
Er is maar één exemplaar beschikbaar, volledig afgewerkt en meteen leverbaar.
Kenmerken
- Afmetingen: 10m20 x 2m44 x 2m90 (buitenmaten)
- Volledig geïsoleerd en afgewerkt
- Voorzien van stijlvolle badkamer
- Binnen afwerking: Geoliede populieren platen, base-beton en click-vinyl
- Buiten afwerking: Rustieke eiken planchette
- Sfeervolle verlichting en kwalitatieve afwerking
- Klaar voor gebruik
- Geschikt als slaapunit, guesthouse, of extra werkplek
Nieuw prijs: €73 295 – Nu beschikbaar voor €63 000?
Prijs is excl. 21% btw, ondersteuning ter plaatsen en de leveringskost.
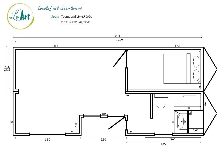
Van Slaper tot compacte woning
Heb je meer ruimte nodig? De Slaper vormt de perfecte basis voor een modulaire woning.
Dankzij het slimme ontwerp kan het concept eenvoudig worden uitgebreid tot een volwaardige leefunit van ongeveer 50 m² — inclusief slaapgedeelte, leefruimte, keuken en badkamer.
Bekijk hieronder het grondplan van de mogelijke uitbreiding en ontdek hoe je met dezelfde stijl en afwerking een complete woonbeleving creëert.
Is dit project helemaal waar je naar op zoek bent of ben je geïnteresseerd? Neem dan zeker contact met ons op en kom hem van dichtbij bewonderen.
